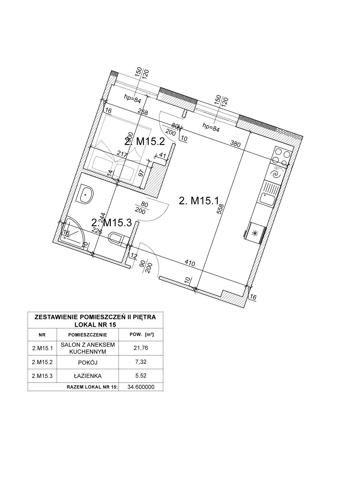
34,60 m 2

Wielkość

238 740 zł

cena mieszkania

Opłaty czynszowe

Mieszkanie na II piętrze

Ściany gładkie malowane na biało

WC wraz ze stelażem

Instalacje elektryczne z białym osprzętem

Teren zamknięty, osiedle z własnym podwórkiem, monitorowany

Kontakt:

605562063

Idealne lokum – nowoczesne, funkcjonalne i w sercu miasta.

Osiedle Harmonia, zlokalizowane przy ul. Kościuszki i Młyńskiej w Szubinie, to nowoczesny kompleks mieszkaniowy stworzony z myślą o wygodzie. Nowe mieszkania do sprzedaży w Szubinie wyróżniają się funkcjonalnością, wysokim standardem wykończenia oraz atrakcyjną lokalizacją w centrum miasta.

Oferta obejmuje 37 mieszkań o metrażach od 25 do 50 m² – każde z pełną własnością i księgą wieczystą. Budynki przeszły gruntowną modernizację – nowe stropy, dach, instalacje oraz energooszczędne systemy wentylacyjne i grzewcze. Całość ocieplono 15 cm warstwą izolacji, co przekłada się na niskie koszty eksploatacji.

Teren osiedla jest zamknięty i monitorowany, a podwórko dostępne wyłącznie dla mieszkańców. Znajdują się tu ławki, zieleń, piaskownica, chodniki oraz miejsca na rowery. Dostępne są również piwnice i komórki lokatorskie.

Dzięki fotowoltaice i własnej kotłowni gazowej, koszty utrzymania mieszkania pozostają wyjątkowo niskie. Osiedle zarządzane jest przez wspólnotę mieszkaniową z doświadczonym administratorem.

To doskonała propozycja dla osób poszukujących mieszkań do sprzedaży w Szubinie – funkcjonalnych, komfortowych i zlokalizowanych w centrum miasta.

Skontaktuj się z nami i umów się na prezentację – przekonaj się, jak dobrze możesz mieszkać w Szubinie!

Dla kupujących

Mieszkania gotowe do zamieszkania oraz w stanie deweloperskim

Oferujemy kompleksowe wykończenie oraz wyposażenie wybranych mieszkań zgodnie z sugestiami kupującego. Współpracujemy z profesjonalnymi biurami projektowymi, oferującymi wizualizacje oraz wyceny remontów.