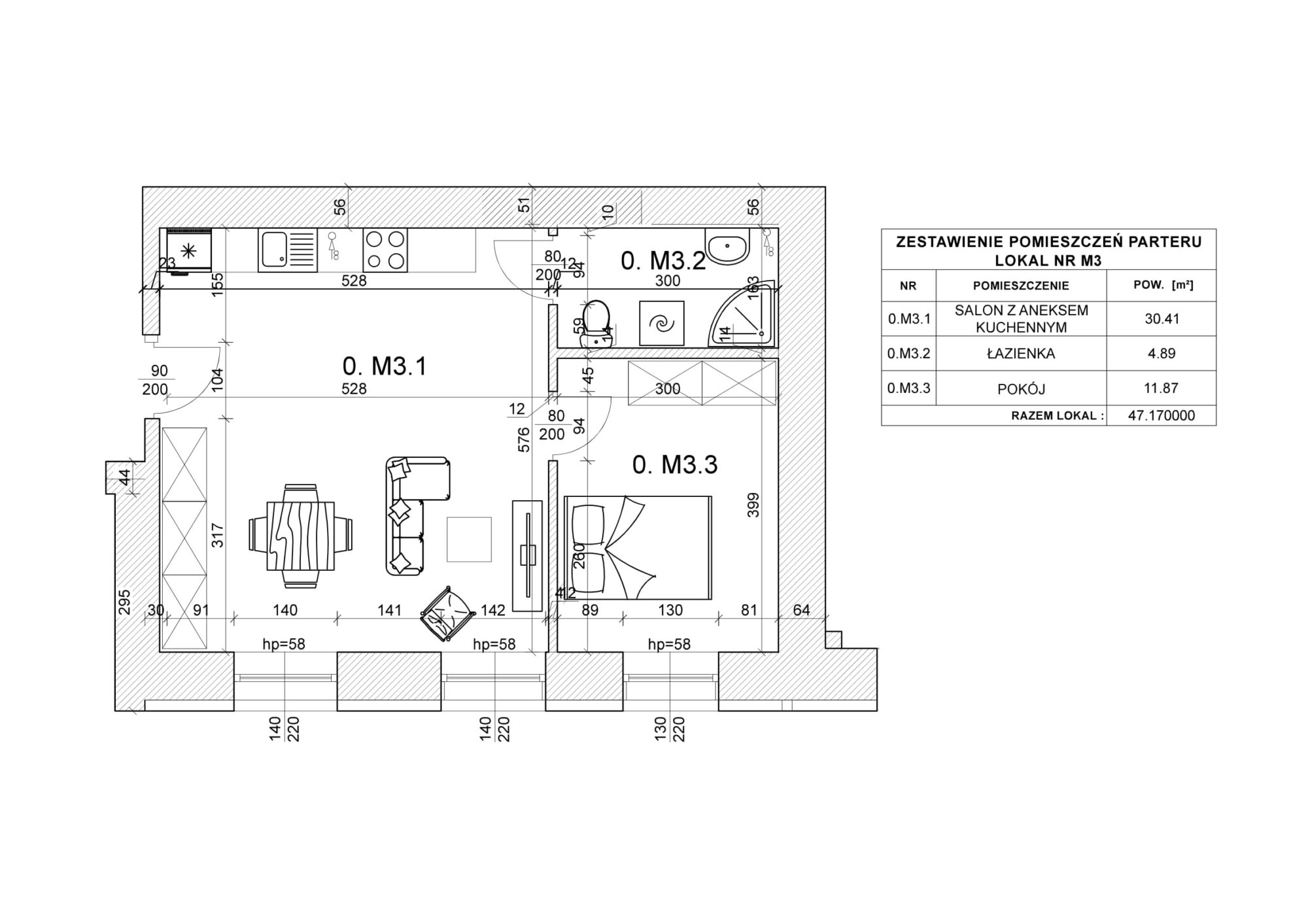
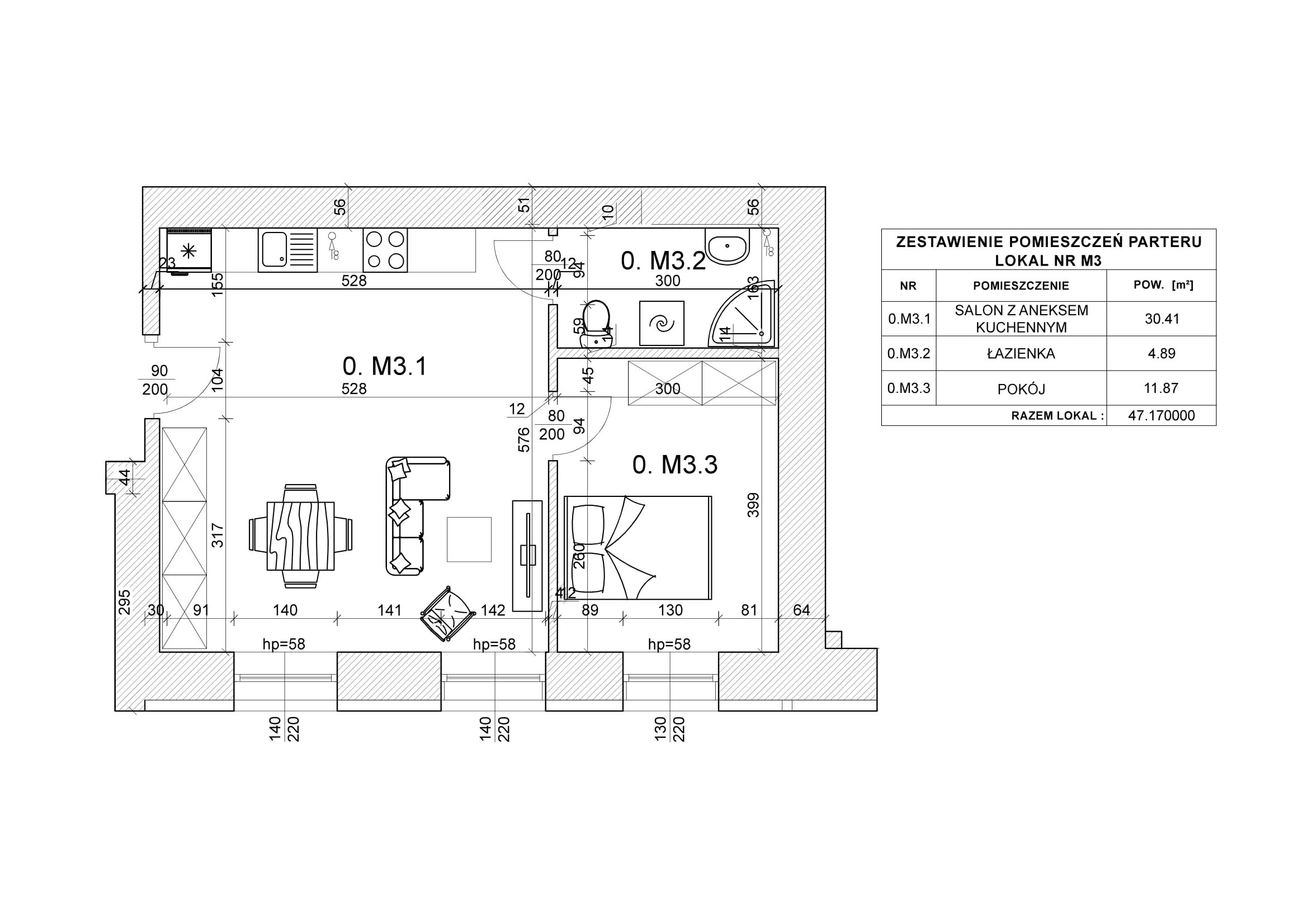
47,17 m 2

Wielkość

325 473 zł

cena mieszkania

ok 580 zł

Opłaty czynszowe

Parter

Ściany, gładzie malowane na biało

WC wraz ze stelażem

Instalacje elektryczne z białym osprzętem

Teren zamknięty, osiedle z własnym podwórkiem

Kontakt:

605562063

Nowe mieszkania na osiedlu Harmonia, ul.Kościuszki 1 oraz Młyńska 1A w Szubinie, 37 lokali od 25 do 50m2. Pełna własność z Księgą Wieczystą.

Własne podwórko, zamknięty i monitorowany teren.

Wykorzystując bardzo korzystną lokalizację wybudowaliśmy w miejscu dawnej komendy policji nowoczesne osiedle. Stare budynki częściowo wyburzone – pozostawione głównie ściany zewnętrzne (solidne, grube mury z cegły), dobudowując nowe piętra i inwestując w solidne betonowe posadzki, uzyskaliśmy funkcjonalny układ ścian. Dodatkowo zainstalowaliśmy wydajny system wentylacji mechanicznej wraz z nawiewnikami, gwarantując komfort zdrowego użytkowania. Całość została ocieplona 15cm warstwą styropianu oraz wełny, aby zmniejszyć koszty sezonowe.

Stolarka okienna pvc, drzwi wejściowe dwuzamkowe a w łazienkach zamontowane są stelaże do zabudowy pod wiszące misy WC. Ściany gładkie, malowane na biało – niewymagające kolejnych inwestycji. Zamontowane grzejniki płytowe, a w łazienkach drabinkowe. Nowe instalacje elektryczne i internetowe doprowadzone są do każdego mieszkania. Założony biały osprzęt elektryczny.

Jakość materiałów oraz wysoki standard wykonania przekładać się będzie na długi czas użytkowania bez remontów czy napraw. Dla wygody zbudowaliśmy również nowoczesną kotłownię gazową, która doprowadza ciepłą wodę i ogrzewa wszystkie mieszkania.  Założone liczniki gwarantują opomiarowanie wody zimnej i ciepłej oraz ogrzewania mieszkań (ciepłomierze). Rozliczenia przeprowadza Administrator zatrudniony przez Wspólnotę Mieszkaniową. Dla wygody mieszkańców dostęp do wszystkich liczników jest na korytarzach, ułatwiając odczyty i konserwacje.

 

Wspólnota posiada własne źródło prądu – na dachu zainstalowane są panele fotowoltaiczne, a energia z nadwyżką wystarczy na potrzeby oświetlenia części wspólnych oraz pracę kotłowni, co pozwoli zmniejszyć koszty użytkowania przez wiele lat.

 

Podwórko pomiędzy budynkami jest dostępne tylko dla mieszkańców osiedla i wyposażone w część wypoczynkową: ławki, chodniki z kostki brukowej, nasadzenia oraz piaskownicę. Nowoczesne i szerokie klatki schodowe gwarantują wygodę bezpieczne użytkowanie.

 

Instalacje domofonowe doprowadzone do wszystkich mieszkań, a wejście na teren osiedla możliwe jest od ulicy Kościuszki 1 oraz Młyńska 1A.

Miejsca na rowery w piwnicy (cześć wspólna) oraz stanowiska na podwórku. Możliwość dokupienia piwnicy/komórki lokatorskiej.

 

Miejsca parkingowe po sąsiedzku – także garaże (ulica Sędziwoja Pałuki, po drugiej stronie ulicy Kościuszki). Ilość wystarczająca dla wszystkich właścicieli. Brama na pilota i monitoring. W planach budowa garaży.

 

Mieszkania sprzedawane bez PCC (bez 2% podatku od czynności cywilnoprawnych). Możliwość wykończenia i wyposażenia mieszkania wg indywidualnych ustaleń.

 

Zarządzane przez Wspólnotę Mieszkaniową, a Administratorem jest Krzysztof Mikietyński. Budynek i wszystkie lokale posiadają świadectwa charakterystyki energetycznej.

 

 

Dla kupujących

Mieszkania gotowe do zamieszkania oraz w stanie deweloperskim

Oferujemy kompleksowe wykończenie oraz wyposażenie wybranych mieszkań zgodnie z sugestiami kupującego. Współpracujemy z profesjonalnymi biurami projektowymi, oferującymi wizualizacje oraz wyceny remontów.